
摘 要:公路作為我國交通基礎設施重要的組成部分,仍然在中國的綜合交通運輸體系中占據主要地位,高速公路行業呈現出穩步發展的態勢。高速公路產業正加速向智慧化、綠色化轉型,通過大數據、物聯網等新技術提升運營效率和服務質量。盡管高速公路產業發展迅速,但仍面臨一些挑戰。各類配電房和機電設備的增加,使供電可靠要求更高,設計一套包括電力監控、電能計量、電能質量治理、能耗分析、電氣安全、運維巡檢管理等技術服務的一體化能源管理系統,能有效降低工作人員勞動強度、提供工作效率、避免人為事故發生、有序保證高速公路可靠運行的供配電系統遠程控制及運維管理平臺尤為重要。
關鍵詞:高速公路;信息化;電力監控;電氣安全
1 概述

巴馬至憑祥高速公路大新經龍州至憑祥段,起點位于天等縣小山鄉賀屯村附近,順接巴馬至憑祥公路田東經天等至大新段終點,路線全長 146.129km。全線采用設計速度100公里/小時的高速公路標準,路基寬度26米(雙向四車道)。橋梁總長度15233.5m/50座:其中特大橋4069m/4 座,大中橋10369m/34 座,小橋794.4m/12座。隧道共設置27157.5m/40 座:其中長隧道12316m/9 座,中隧道10383.5m/16 座,短隧道4458m/15座,橋隧比占路線總里程長度的29.01%。設置互通式立體交叉 8 處(樞紐互通 3 處、一般互通 5 處),服務區 3 處,養護工區 2 處,監控分中心 2 處,隧道管理所 1 處。
2 項目方案
2.1項目需求
電力監控功能要求
數據采集功能:能夠通過智能設備進行通信對所有的模擬量、開關量、脈沖量進行實時和定時數據采集,所有的電量均采用交流直接采樣,保證測量的高精度和同時性。定時數據可根據設定的時間間隔自動轉存于硬盤,作為歷史記錄存檔。
數據處理功能:能對模擬量進行合理性校驗、上下限比較等。對開關量進行實時掃描,分滑率≤1ms,對開關變位作事件記錄輸出并告警,對重要歷史數據進行處理并存盤。
事件記錄與報警功能:當出現開關事故變位,透測越限、保護動作和其它報警信號時,系統能發出音響提示,并自動推出報警面面。報警需經操作員確認后方能手動復位,報警音響能根據報警等級發出不同的音響提示。報警事件記錄入籃控系統數據庫。
圖形顯示功能:能通過導航縮放功能顯示本廠所有供電系統的網絡圖,動態刷新顯示配電系統和各變電所主接線圖、系統和保護測控裝置配置圖,主接線圖上能實時顯示各開關運行狀志、在線運行參數等,并且能顯示各種曲線、棒圖等功能。
2.2產品需求
1)ANet通訊管理機
監控系統的通信層由光纖通訊網絡、各變電所/箱變的智能通訊管理機和光纖冗余工業以太網交換機組成。變電所通過本路段高速公路主干通信網絡,把電力監控數據傳輸到對應的路段監控分中心監控分中心電力監控主機。
通信管理機技術要求:
在各變電所/箱變設置一臺智能通訊管理機,負責實現變電所/箱變內各監控設備的通訊管理、信號傳輸等功能。其主要功能如下。
采用高性能的嵌入式 CPU,具有高速運算、通信及數據處理能力。具有 2 個 10/100M 網口、8 個高速串行口(包括 RS232、 RS485)。
具有多種通信規約,包括MQTT規約、IEC103\104 協議、IEC 61850協議、MODBUS協議等。
2)AM4保護裝置
高壓系統設置微機綜合保護測控裝置,對 10kV 進出線、母線分段、變壓器組等回路進行繼電保護和運行測控。電力監控系統與微機保護測控裝置進行通信實時監測各進線、出線的運行狀態。
10kV 進線出線:設置微機保護測控裝置,可實現就地、遠動的保護、測控功能。
10kV 母線分段:設置帶 BZT 功能的微機保護測控裝置,可實現就地、遠動的保護、測控功能。
變壓器:設置微機變壓器保護測控裝置,可實現就地、遠動的保護、測控功能,電力監控通過干變內部預先埋設的溫度傳感器和相應的智能溫控儀對干變的溫度信號、超溫報警、變壓器風機工作狀態等變壓器運行狀態進行監測。
高壓 PT:設置微機綜合 PT 測控裝置,實現 PT 的電壓監測等功能。
至少具有8路模擬量通道,至少12路交直流兩用、110V/220V自適應的開關量輸入。至少5路開關量輸出;所有接口資源均支持圖形化可編程、任意配置。至少具有1個RS485通信接口。
3)補償/濾波控制器
電容補償:無功補償+濾波柜控制器接入智能通信管理機,通過電力監控主機顯示其運行狀態,各種參數在當地顯示。
4)AMC多功能數字式電表
進線回路:0.4KV 配電柜進線單元和發電機進線柜、聯絡開關柜等,對相應回路均配置一臺智能多功能電力監控儀表,監測其有功 P、無功 Q、三相電壓 U、三相電流 I、功率因數 COSΦ;監視開關位置信號、回路分合閘狀態、故障脫扣信號等;并對進線開關(低壓斷路器含電操等自動機構)進行遠程分合閘控制。
出線回路:對 0.4KV 低壓開關柜的每一回出線回路,均配置一臺智能三相電力監控儀表,監測該回路的電壓、電流、有功、無功、電度并在當地顯示,隨時了解供電回路的負荷情況;并監視開關位置信號、回路分合閘狀態等。
5)電氣火災監控裝置
電氣火災監控系統要求能夠探測電氣線路中的剩余電流、異常溫升、故障電弧、過流和過壓等電氣故障異常狀態,當超過限定值時發出報警信號,顯示并記錄其故障狀態。
電氣火災監控系統應具備與圖形顯示裝置接入功能,實時傳送監控信息,顯示監控數值和報警部位。
電氣火災監控系統應具備方便的區域化管理,集中管理,操作及維護。
電氣火災監控系統不應斷開主回路而影響供電的連續性。
2.3產品上圖方案
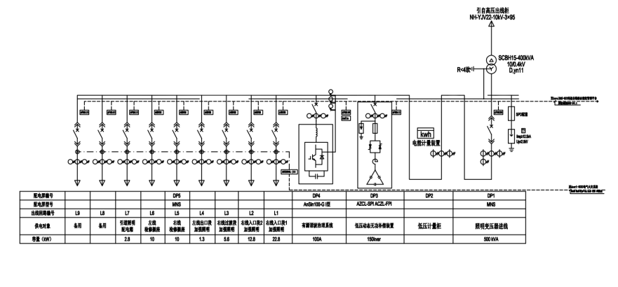
本工程10kV/0.4kV配電工程共有92個變電所,以大憑隧道變電所為例,上圖方案如下:

圖1大屏隧道10kV上圖方案

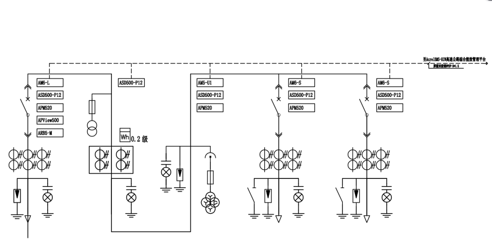
圖2大屏隧道0.4kV上圖方案
2.4產品明細
整個高速公路項目共有92個變電所,其中大新至憑祥段38個變電所,天等至大新段54個變電所,變電所所設產品類型及數量如下:

3 系統需求
為實時監視整個配電室的運行以及數據采集,該項目配置一套AcrelEMS-HIW高速公路綜合能效系統,主要實現對新晉高速公路各個變電所的用電監控與管理。監控范圍為變電所的微機保護裝置、電能表、變壓器溫控儀、EPS、UPS、無功補償、發電機控制屏、智能照明和電氣火災監控等。本系統由用戶管理層、網絡通信層、現場設備層三部分組成,現場設置的電能表采用屏蔽雙絞線連接至各分區數據采集器,各分區數據采集器將數據分類處理后,通過網線連接至局域網交換機上傳至電力監控系統主機,實現電力監控功能。

圖3 系統架構圖
AcrelEMS-HIW高速公路綜合能效系統可實現的功能如下:
1)電力綜合看板:可查看整個平臺的一個概況,包括變電站數量、變電站分布位置;變壓器數量、總裝機容量,統計出的整個系統當前的總功率和當日的總用電,也可監測網關、儀表的運行狀態;展示了接入的光伏站點的信息,包括發電功率和當日發電量;還有運維任務的情況,在辦、辦畢的個數,統計出任務完成率;報警情況統計,統計出報警程度的分布情況,新報警滾動顯示,平臺當月每天的報警數量統計。
2)全路段監控:沿途數十幾個配電房繪制在一張K線圖里面,點擊每個站跳轉相關配電圖畫面顯示,使整條高速公路的配電系統一圖掌握。


3)實時監測:以配電一次圖的形式直觀顯示配電線路的運行狀態,可以實時監測各回路電壓、電流、功率、功率因數等電參數信息,動態監視各配電回路斷路器、隔離開關、地刀等合、分閘狀態。圖5 逐桐隧道10kV配電監測界面
4)電參量查詢:在配電一次圖中,可以直接查看該回路詳細電參量,包括三相電流、三相電壓、總有功功率、總無功功率、總功率因數、正向有功電能等。
5)運行報表:查詢各回路或設備時間的運行參數,報表中顯示電參量信息應包括:各相電流、三相電壓、總功率因數、總有功功率、總無功功率、正向有功電能等,報表格式有日報表、月報表、年報表等。
6)實時告警:能夠對配電回路斷路器、隔離開關、接地刀分、合動作等遙信變位,保護動作、事故跳閘等事件發出告警。
7)歷史事件查詢:能夠對遙信變位,保護動作、事故跳閘,以及電壓、電流、功率、功率因數越限等事件記錄進行存儲和管理,方便用戶對系統事件和報警信息進行歷史追溯,查詢統計、事故分析。
10)事故追憶:能夠自動記錄事故時刻前后一段時間的所有實時穩態信息,包括開關位置、 保護動作狀態、遙測量等,形成事故分析的數據基礎。
11)曲線查詢:能夠查詢實時曲線和歷史曲線,包括三相電流、三相電壓、有功功率、無功功率、功率因數等所有遙測量。
12)用戶權限管理:設置了用戶權限管理功能,通過用戶權限管理能夠防止未經授權的操作(如遙控的操作,數據庫修改等)。系統可以定義不同操作權限的權限組(如管理員組、工程師組、操作員組等),在每個權限組里分配不同用戶,為系統運行、維護、管理提供可靠的安全保障。
13)電氣火災監測:針對低壓用電環節各回路中的剩余電流、溫度和故障電弧等進行實施監測;為低壓用電環節的安全性,當剩余電流越報警輸出,以提醒維護人員進行安全檢查,防止因漏電引起的火災發生,實現對高速公路電氣安全預警。
14)智能照明控制:可按季節對相應回路設定定時合閘定時分閘操作,實現自動化控制
15)遙控功能:根據電力規程要求,可以對整個配電系統范圍內的設備進行遠程遙控操作。
16)通信管理:可以對整個配電系統范圍內的設備通信情況進行管理、控制、數據的實時監測。
4 現場安裝圖片
本項目微機保護就地分散安裝在各個高壓開關柜上,保護裝置、電氣火災監測裝置以及電能表現場安裝如下圖所示。圖10 微機保護、儀表、電氣火災裝置在大憑高速公路配電工程現場安裝圖片





5 結語
AcrelEMS-HIM高速公路綜合能效管理系統對高速公路沿線隧道、服務區、收費站和箱變等變電所的配電設備、發電機、變壓器 、UPS、EPS 、照明、通風及排水等機電設備進行實時分布式監控和集中管理 , 確保高速公路安全暢通, 提高自動化管理水平, 降低機電設備的運行維護成本。運營維護人員能通過系統及時發現電氣安全隱患及電氣故障,并能夠對場區用電數據進行報表及統計。有效降低工作人員勞動強度、提高工作效率、避免人為事故發生、有序保證高速公路可靠運行。